Superbe villa de 2022 à vendre

Partager

  • 145 m2

    Surface habitable

  • 1.386 m2

    Surface terrain

  • 1

    Salle de bain

  • 3

    Chambres

  • 1

    Etage

  • 2

    WCs

Description

Vos agences Ardenne Libramont vous présente cette superbe villa de 2022, idéalement située à Saint-Hubert où vous bénéficiez de toutes les facilités qu’offre la ville, tout en étant dans un environnement préservé avec une superbe vue dégagée. Vous serez séduit par ses agréables pièces à vivre bénéficiant d’une luminosité naturelle, ainsi que par ses grandes chambres dont une avec la possibilité d’un espace dressing.

À savoir : chauffage central au gaz propane, citerne d’eau de pluie de 5.000L ( 2 WC + robinet du garage), zone d’égouttage individuel.

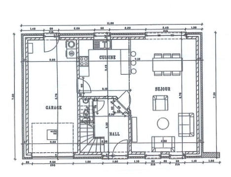
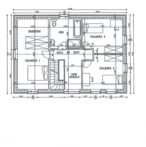
Composition :

Rez : hall d’entrée, WC indépendant, salon, salle à manger avec cuisine ouverte, garage avec espace buanderie.

Etage : hall de nuit, 3 chambres à coucher dont une avec espace dressing, salle de bains avec douche et WC.

Extérieur : grand jardin clôturé, abri de jardin, agréable terrasse avec superbe vue dégagée.

Prix : 360.000 € (sous réserve d’acceptation des propriétaires).

Prix

  • € 360.000

Equipements

  • Parking extérieur

  • Jardin

  • Parking intérieur

Composition et superficies

  • Type

    Surface

  • Salon

    27 m²

  • Cuisine

    10 m²

  • Chambre à coucher

    12 m²

  • Salle de bains

    9 m²

  • Chambre à coucher

    12 m²

  • Chambre à coucher

    26 m²

Energie

  • Energy - B

    Niveau DPE/PEB

  • 95 kWh/m².an

    E spec

  • 15622 kWh/an

    E total

  • 20221124509676

    PEB No.

  • Chauffage central

Vidéo

Mentions urbanistiques & légales

  • Permis de lotir

  • Permis de bâtir

Propriétés similaires