Bien d'exception à vendre à Baronville / Beauraing

Partager

  • 492 m2

    Surface habitable

  • 2.600 m2

    Surface terrain

  • 1

    Salle de bain

  • 8

    Chambres

  • 3

    Etages

  • 8

    WCs

Description

Vos Agences Condrogest Beauraing vous propose ce bien d’exception situé dans le village de Baronville, à côté du château et de son domaine de 46 hectares. Coup de cœur garanti avec cette ancienne conciergerie du château ! Tout y est : matériaux nobles et de qualité (parquet chêne massif, tomettes, tapis phonique, …), piscine couverte et chauffée, un système de chauffage récent et moderne, une salle de cinéma, un sauna infrarouge, … Suite à une rénovation récente, le bien bénéficie d’un PEB A : le confort moderne dans une ancienne bâtisse. Chaque chambre (8 au total) dispose de sa pièce d’eau (bain ou douche + WC indépendant). La terrasse est équipée d’une banne solaire hors norme, de pavés anciens et d’une table en béton qui permettra de réunir tout le monde à table. Pour vous aider à entretenir les extérieurs, une tortue tondeuse réalise le travail. Le bien est situé à proximité des villes de Beauraing, Dinant, Hastière, Givet et à mi-chemin entre Bruxelles et Luxembourg. Accès aisé à la E411.

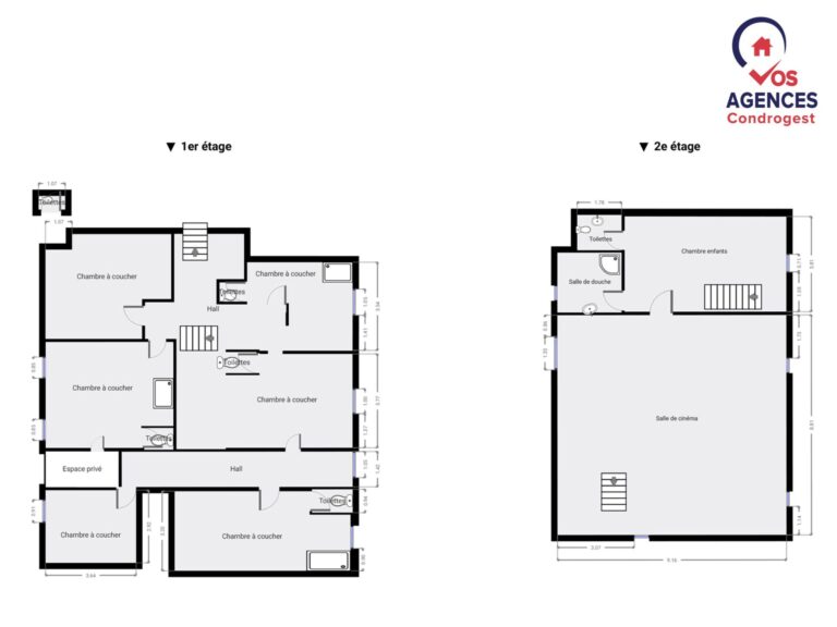
Composition :
– Rez-de-chaussée : cuisine, 2 salles à manger, salon, chambre PMR, salle de douche, local technique, piscine couverte et grande terrasse ;
– 1er étage : hall et 6 chambres ;
– 2e étage : grande chambre, salle de douche et salle de détente (jeux, cinéma, …).

Remarques : une chambre au rez (PMR) – panneaux photovoltaïques (2023) – pas de travaux à prévoir – châssis entièrement remplacés – chauffage central gaz avec télémétrie – chaudière Viessman de 2018 – volet motorisé pour la piscine – électros Smeg, Miele et Samsung – 2 lave-vaisselles – Sauna infrarouge avec vue sur les campagnes – Electricité aux normes – rénovation récente du bâtiment – cave voutée – possibilité d’acheter le mobilier

Prix : 799.000 € sous réserve d’acceptation des propriétaires.
Valeur meubles : 35.000 €

Prix

  • € 799.000

Prix sous réserve d'acceptation des propriétaires. Valeur mobilier (35.000€) à ajouter

Equipements

  • Sous-sol

  • Parking extérieur

  • Jardin

  • Piscine

  • Terrasse

Composition et superficies

  • Type

    Surface

  • Salon

    22,3 m²

  • Cuisine

    27,26 m²

  • Chambre à coucher

    21,05 m²

  • Chambre à coucher

    20,73 m²

  • Chambre à coucher

    19,07 m²

  • Chambre à coucher

    18,74 m²

  • Chambre à coucher

    16,47 m²

  • Chambre à coucher

    11,46 m²

  • Chambre à coucher

    11,83 m²

  • Chambre à coucher

    10,63 m²

  • Jardin

    2.100 m²

Energie

  • Energy - A

    Niveau DPE/PEB

  • 68 kWh/m².an

    E spec

  • 36504 kWh/an

    E total

  • 20231015001911

    PEB No.

  • Chauffage central

Vidéo

Plans & documents

Mentions urbanistiques & légales

  • Zone non-inondable

Propriétés similaires