Superbe propriété rénovée 7 chambres à vendre à Hodister

Partager

  • 437 m2

    Surface habitable

  • 2.232 m2

    Surface terrain

  • 4

    Salle de bains

  • 7

    Chambres

  • 3

    Etages

  • 5

    WCs

Description

Vos Agences Condrogest Marche vous présente cette propriété d’exception en pierre du pays entièrement rénovée avec un niveau de finition remarquable, développant plus de 437 m² habitables et offrant encore un potentiel d’exploitation et d’aménagement considérable. Cette demeure de caractère ouvre la voie à de nombreux projets : chambres d’hôtes de standing, habitation intergénérationnelle de type kangourou, résidence familiale d’envergure, ou toute autre affectation à la hauteur de ses volumes.
Cette somptueuse bâtisse allie authenticité et performances énergétiques de premier ordre, répondant pleinement aux exigences actuelles et futures grâce à un excellent label énergétique A.

Idéalement située au cœur du village prisé de Hodister, la propriété bénéficie d’un environnement champêtre, d’un calme absolu, tout en restant à proximité immédiate des grands axes N4 et N63 ainsi que des commodités du village de Rendeux (Delhaize, boulangerie, pharmacie, etc.). Vous profiterez également de la proximité de pôles touristiques et gastronomiques réputés tels que La Roche-en-Ardenne ou Durbuy. Les amoureux de nature apprécieront l’accès direct à de splendides promenades, notamment le célèbre Sentier de l’Ermitage de Saint-Thibaut.

Composition :
– Sous-sol : cave sous une partie ;
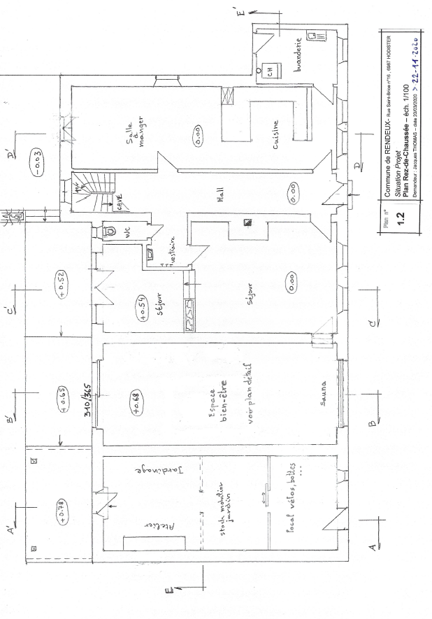
– Rez-de-chaussée : hall d’entrée élégant, salon chaleureux, salle à manger, cuisine ouverte sur une seconde salle à manger, chaufferie/buanderie, vestiaire, WC indépendant, espace wellness avec WC indépendant et sauna infrarouge, grange offrant un potentiel d’aménagement sur 3 niveaux ;
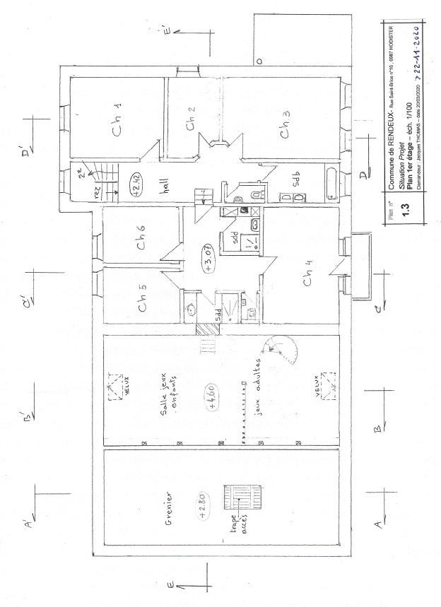
– 1er étage : hall de nuit, 6 chambres à coucher dont 3 dans un espace indépendant sur demi-niveau, 3 salles d’eau indépendantes, 2 WC indépendants ;
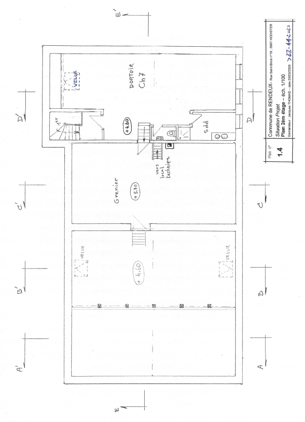
– 2e étage : grande chambre/dortoir de près de 50 m² avec salle de douche, WC indépendant, vaste grenier aménageable ;
– Extérieur : superbe jardin paysager de plus de 22 ares, terrasse partiellement couverte, cour à l’avant du bâtiment avec abri à bois.

Prix : 945 000 € (sous réserve d’acceptation des propriétaires).

Remarques : nouvelle toiture isolée – 32 panneaux photovoltaïques – pompe à chaleur – chauffage au sol dans l’espace wellness – système de ventilation double flux – cuisine entièrement équipée récente – espace wellness exclusif de près de 50 m² avec étage dédié à la détente – cassette à bois avec soufflerie – plancher de l’étage entièrement rénové – vaste espace de plus de 50 m² aménagé en chambre dortoir avec salle de douche et WC au 2e étage – production d’eau chaude via chaudière au mazout – plusieurs salles d’eau entièrement rénovées.

Prix

  • € 945.000

€ 756

Revenu cadastral

Equipements

  • Grenier

  • Balcon

  • Sous-sol

  • Parking extérieur

  • Jardin

  • Terrasse

Composition et superficies

  • Type

    Surface

  • Salon

    54 m²

  • Cuisine

    20 m²

  • Chambre à coucher

    20 m²

  • Salle de bains

    7 m²

  • Salle de bains

    8 m²

  • Salle de bains

    4 m²

  • Chambre à coucher

    10 m²

  • Chambre à coucher

    9 m²

  • Chambre à coucher

    18 m²

  • Chambre à coucher

    8 m²

  • Chambre à coucher

    17 m²

  • Chambre à coucher

    45 m²

  • Salon

    28 m²

  • Salon

    55 m²

  • Salle de bains

    3 m²

Energie

  • Energy - A

    Niveau DPE/PEB

  • 79 kWh/m².an

    E spec

  • 51111 kWh/an

    E total

  • 20260223010379

    PEB No.

Vidéo

Propriétés similaires